Franck DUFFARD Agence
Télécharger la fiche

Maison 6 pièce(s) 4 chambre(s) 120 m²

Montournais (85700)
142 000 € Référence 1612

A propos de ce bien

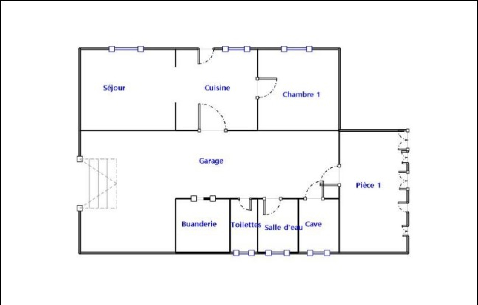
Dans un village tranquille, avec une vue dégagée et imprenable sur la campagne decouvrez cette  grande maison en pierre en cours de renovation comprenant:

Au RDC : une cuisine aménagée spacieuse, un grand salon avec cheminée insert , une grande chambre, sde, wc, lingerie veranda d'ete (salle de detente et jeux) 

A l'étage: 3 chambres sur parquet 

Garage, atelier, cave et potentiel restant .

Le tout sur une parcelle de plus de 2800 m² de terrain avec une parcelle non attenante (verger de 650m² env)

Travaux a prévoir

Caractéristiques de ce bien

  • Surface 120 m²
  • carrez 35 m²
  • terrain 2 819 m²
  • séjour 35 m²
  • 4 chambre(s)
  • 1 salle(s) de bain
  • construit en 1900
  • cuisine séparée
  • 2 garage(s)
  • exposition Sud-Ouest
  • 2 niveau(x)
  • vue imprenable et degagee sur la campagne
  • arboré
  • piscinable

Diagnostics énergétiques

Consommation énergétique
A B C D E F G
Emission de gaz à effet de serre
A B C D E F G
DPE en cours

Informations financières

Prix de vente honoraires TTC inclus 142 000 €
Prix de vente honoraires TTC exclus 135 000 €
Honoraires TTC à la charge acquéreur 5,19 %

Calcul des mensualités

* Champs obligatoires